Водяная тепловая завеса Тепломаш КЭВ-130П5133W серии 500 Бриллиант
Тепловая завеса, в зависимости от проектного решения может использоваться для защиты как смесительного, так и шиберующего (отсекающего) типа — от прямого контакта с наружным воздухом через открытые двери в холодный период времени. Устанавливается внутри помещения, горизонтально над проемом, как можно ближе к краю. При большой ширине проема можно располагать сразу несколько завес вплотную друг к другу и управлять ими с одного пульта. Подходит для установки в складских помещениях, гостиницах, ресторанах, супермаркетах и др.
Высота установки от 3 до 6 метров.
Корпус изготовлен из нержавеющей стали, забор воздуха осуществляется в верхней части, благодаря чему лицевая панель всегда остается чистой.
Преимущества и особенности:
- Горизонтальный монтаж.
- В комплекте проводной сенсорный пульт HL18 с защитой IP30 и встроенным термостатом + дистанционный пульт.
- Встроенная РСВ-АС плата — возможность подключения неограниченного количества завес к 1 пульту, а также дополнительного оборудования.
- Функция защиты от низких температур (позволяет настроить диапазон включения и выключения завесы на обогрев при отрицательной температуре наружного воздуха).
- Защита от пыли и влаги корпуса IP21.
- Максимальная допустимая температура теплоносителя 150°С.
- Функция подключения к охранно-пожарной сигнализации.
- Работа от сети 220В.
- Возможно использовать в режиме вентиляции без нагрева в летний период.
Варианты регулирования температуры:
- Стандартная комплектация: завеса + проводной пульт HL18 с электронным термостатом — поддержание заданной температуры осуществляется за счет включения/выключения вентилятора и его работы на выбранной скорости. При достижении необходимого уровня температуры вентилятор завесы отключается, теплоноситель продолжает циркулировать.
- Опциональное подключение клапана с сервоприводом меняет принцип работы: клапан, по команде термостата перекрывает или открывает подачу теплоносителя, вентилятор продолжает работу.
Комплектующие для монтажа:
![]() | ![]() | ![]() | ![]() | ![]() | ![]() | ![]() |
| Металлорукав L=400 Dy 3/4 | Кран шаровой 3/4" | Фильтр сетчатый 3/4" | Угольник 1/2" | Воздухоотводчик автоматический 1/2" | Ниппель 3/4" | Тройник переходной 3/4" х 1/2" х 3/4" |
Дополнительное оборудование:
![]() | ![]() | ![]() | ![]() | ![]() |
| Смесительный узел | Термостат защиты от замораживания RAK-TW. 5000S-Н | Двухходовой клапан с сервоприводом ТМ-К-3/4-СП | Концевой выключатель ВП-15К21 | Блок-WA (ver. E) |
| Регулирование подводимой тепловой мощности в зависимости от температуры воздуха внутри помещения | Защита теплообменников от низких температур | Регулирование теплоотдачи завесы для поддержания заданной температуры в помещении | Включает завесу при открывании ворот | Блок подключения дополнительного оборудования и включения режима энергосбережения. |
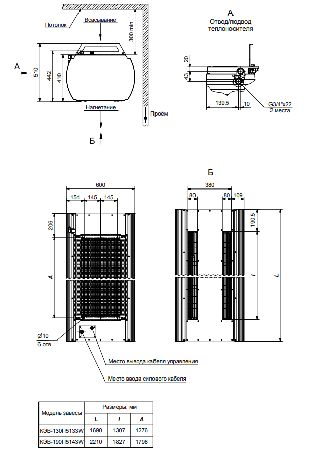
Габаритные и присоединительные размеры:


Условная тепловая мощность водяной завесы указанна в кВт.ч при температуре подаваемой воды +95°С / её охлаждением до +70°С / температура окружающей среды +15°С. При изменение любого из показателей мощность будет отличаться от заявленной. (См. технические характеристики модели)
- passport_500W_brilliant.pdf (5.31 MBytes) - Руководство по монтажу и эксплуатации, технический паспорт, серия 500W Бриллиант
- garantijnye-obyazatelstva-teplomash.pdf (201.44 KBytes) - Гарантийные обязательства
- declar-o-sootv.pdf (536.73 KBytes) - Декларация о соответствии
- zavesy-series500.pdf (0.90 MBytes) - Описание серия 500





































































