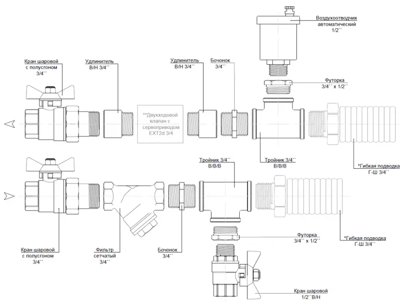
Сантехкомплект для обвязки 2С Греерс
Шаровые краны в сантехническом комплекте позволяют перекрывать поток теплоносителя для проведения чистки теплообменника и фильтра. На подающей линии теплоносителя установлен фильтр, который предохраняет теплообменник от возможных повреждений из-за содержания в теплоносителе мелких частиц. Для спуска воды из теплообменника предусмотрен дренажный кран. Для предотвращения завоздушивания системы в комплект для обвязки входит автоматический воздухоотводчик.
Подходит для всей линейки ГРЕЕРС ВС и ГРЕЕРС ЗВ-В.
1С – для подключения аппаратов с диаметрами патрубков 1/2
2С – для подключения аппаратов с диаметрами патрубков 3/4

* Необходимо использовать гибкую подводку для подключения сантехнического комплекта к водяному теплообменнику (гибкая подводка не входит в сантехнический комплект для обвязки).
** При необходимости комплект для обвязки можно дополнить двухходовым клапаном с сервоприводом EXT 2d 1/2, подключение которого выполняется с помощью двух удлинителей и бочонка. В противном случает удлинители и бочонок не используются.
Технические параметры:
- Номинальный диаметр, DN: 20 (3/4")
- Класс герметичности затвора крана: А
- Номинальное давление, PN: 10 бар
- Температура окружающей среды, °C: -20…+60
- Температура рабочей среды, °C -20…+120
- Размер ячейки фильтра, мкм: 400




































